• ZET JE WONING TE KOOP EN NEEM DEEL AAN DE DRUKBEZOCHTE KIN OPEN HUIZEN DAG OP ZATERDAG 13 JUNI A.S.

Rijen

Charley Tooropstraat 36

Vraagprijs € 385.000 k.k.
verkocht

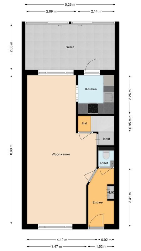
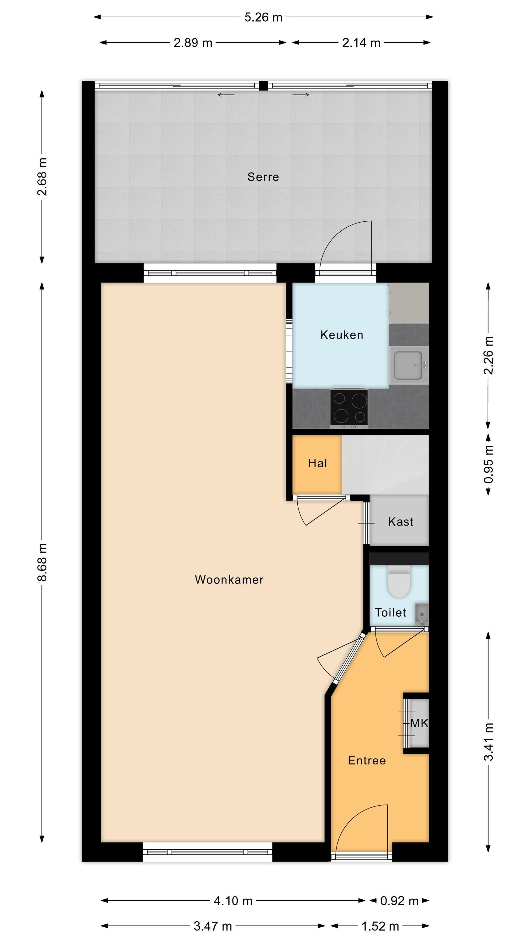
4 Slaapkamers

103 m² Oppervlakte

154 m² Perceeloppervlakte

B Energielabel