• ZET JE WONING TE KOOP EN NEEM DEEL AAN DE DRUKBEZOCHTE KIN OPEN HUIZEN DAG OP ZATERDAG 13 JUNI A.S.

Rijen

Biezelaar 4

Vraagprijs € 498.000 k.k.
verkocht

3 Slaapkamers

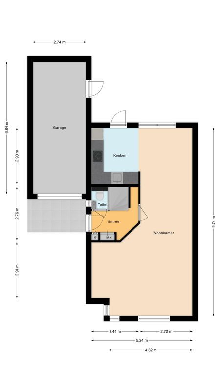
117 m² Oppervlakte

254 m² Perceeloppervlakte

C Energielabel