• ZET JE WONING TE KOOP EN NEEM DEEL AAN DE KIN OPEN HUIZEN DAG OP ZATERDAG 13 DECEMBER!

Geldrop

Fleskensstraat 31

Vraagprijs € 399.000 k.k.
Verkocht onder voorbehoud

2 Slaapkamers

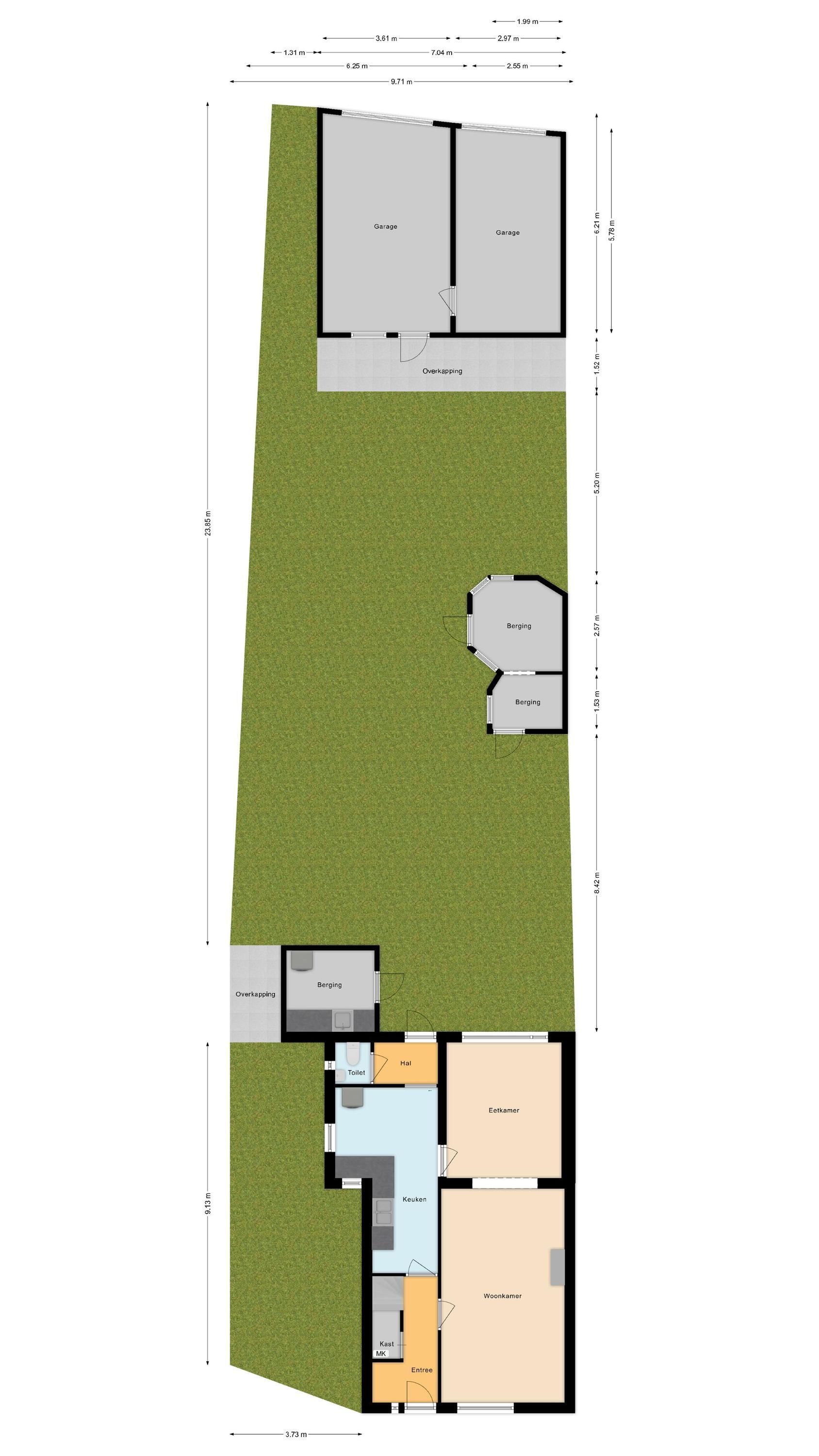
91 m² Oppervlakte

305 m² Perceeloppervlakte

E Energielabel

Interesse in Fleskensstraat 31?

We horen graag van je!

Contactgegevens