• ZET JE WONING TE KOOP EN NEEM DEEL AAN DE KIN OPEN HUIZEN DAG OP ZATERDAG 13 DECEMBER!

Eindhoven

Gestelsestraat 170 - B

Vraagprijs € 425.000 k.k.
Nieuw!

3 Slaapkamers

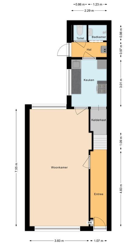
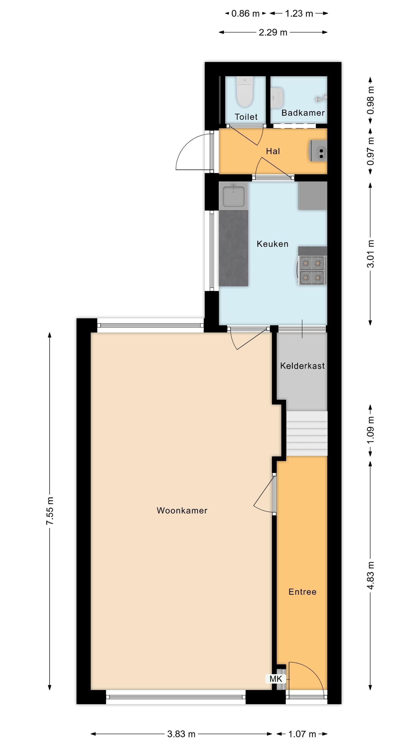
86 m² Oppervlakte

195 m² Perceeloppervlakte

E Energielabel

Interesse in Gestelsestraat 170-B?

We horen graag van je!

Contactgegevens