• Huis verkopen in 2026? Zet jouw woning te koop en neem deel aan de KIN Open Huizen dag van 7 februari a.s.!

Breda

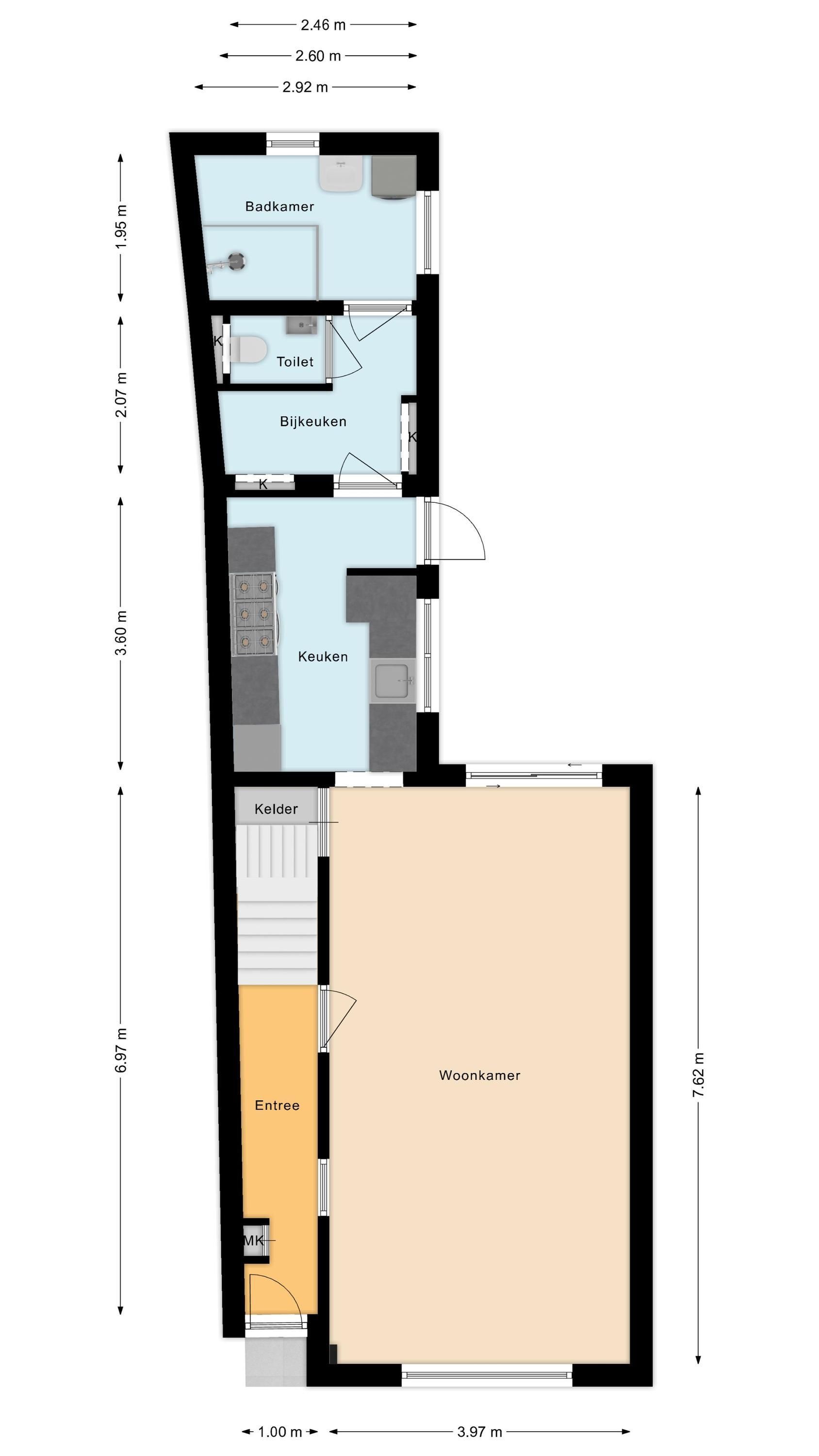
Terheijdenseweg 227

Vraagprijs € 389.000 k.k.
Verkocht onder voorbehoud

2 Slaapkamers

99 m² Oppervlakte

204 m² Perceeloppervlakte

A Energielabel

Interesse in Terheijdenseweg 227?

We horen graag van je!

Contactgegevens