• ZET JE HUIS TE KOOP EN NEEM DEEL AAN DE NVM OPEN HUIZEN DAG VAN 28 MAART!

Breda

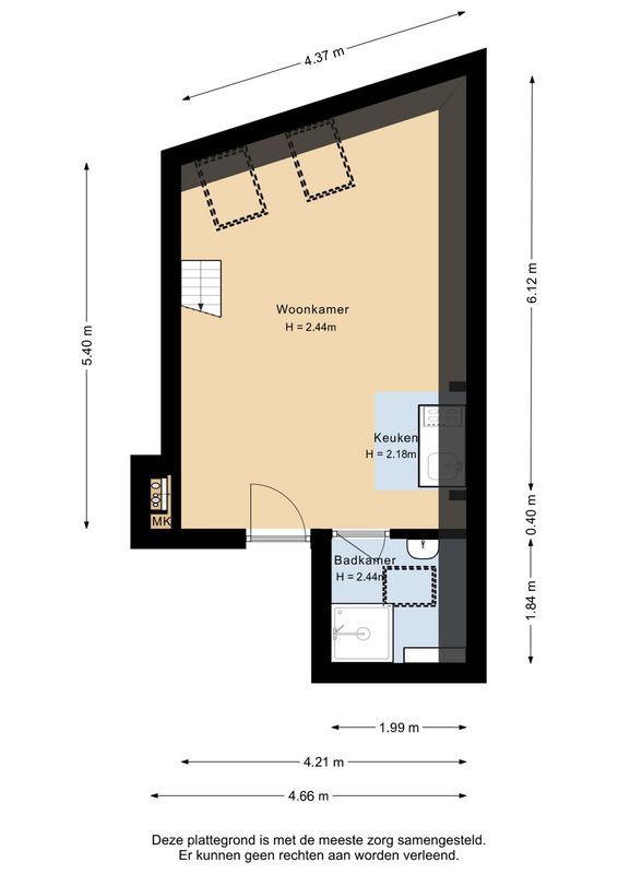
Nieuwe Haagdijk 69 - C1

Vraagprijs € 200.000 k.k.

29 m² Oppervlakte

A Energielabel

Interesse in Nieuwe Haagdijk 69-C1?

We horen graag van je!

Contactgegevens