• ZET JE WONING TE KOOP EN NEEM DEEL AAN DE DRUKBEZOCHTE KIN OPEN HUIZEN DAG OP ZATERDAG 13 JUNI A.S.

Breda

Menno van Coehoornstraat 9

Vraagprijs € 415.000 k.k.
verkocht

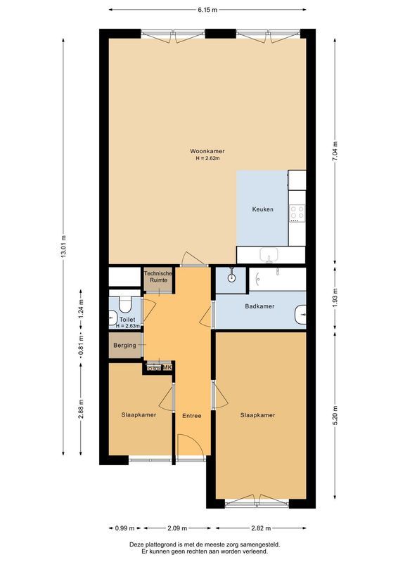
2 Slaapkamers

83 m² Oppervlakte

A Energielabel