• Huis verkopen in 2026? Zet jouw woning te koop en neem deel aan de KIN Open Huizen dag van 7 februari a.s.!

Breda

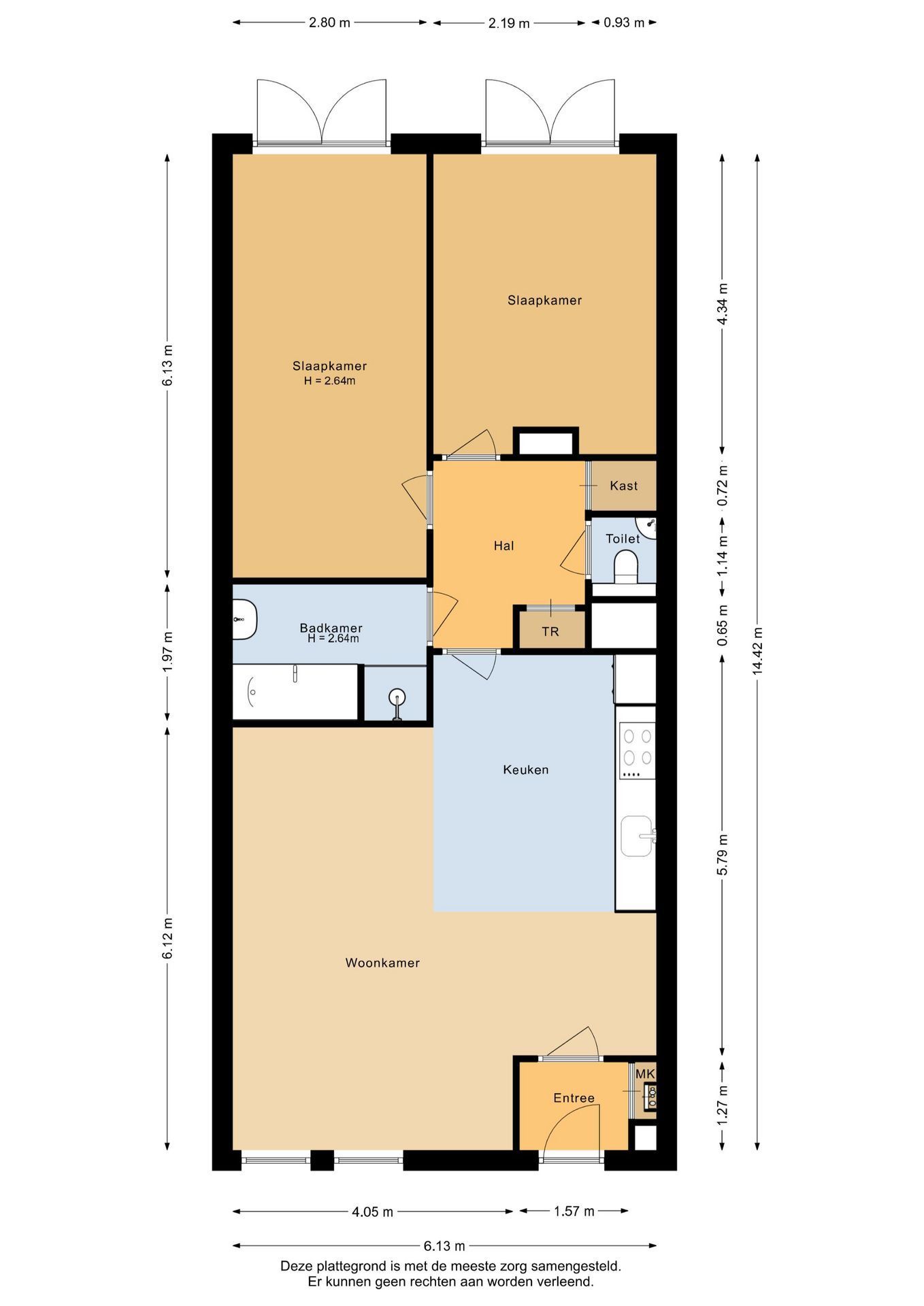
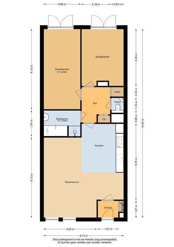
Meerten Verhoffstraat 12 - D

Vraagprijs € 425.000 k.k.
verkocht

2 Slaapkamers

88 m² Oppervlakte

A Energielabel