• ZET JE WONING TE KOOP EN NEEM DEEL AAN DE DRUKBEZOCHTE KIN OPEN HUIZEN DAG OP ZATERDAG 13 JUNI A.S.

Breda

Bloemstraat 9

Vraagprijs € 1.195.000 k.k.
verkocht

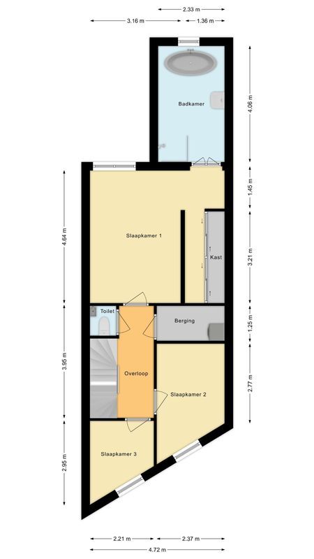
6 Slaapkamers

176 m² Oppervlakte

407 m² Perceeloppervlakte

A+ Energielabel